7570 Barcs, Bajcsy Zsilinszky út 57-59.
289 m2
| 144€/HÓ
+ 1 kép
Alaprajzok
+ 2 kép
Ingatlan Leírása
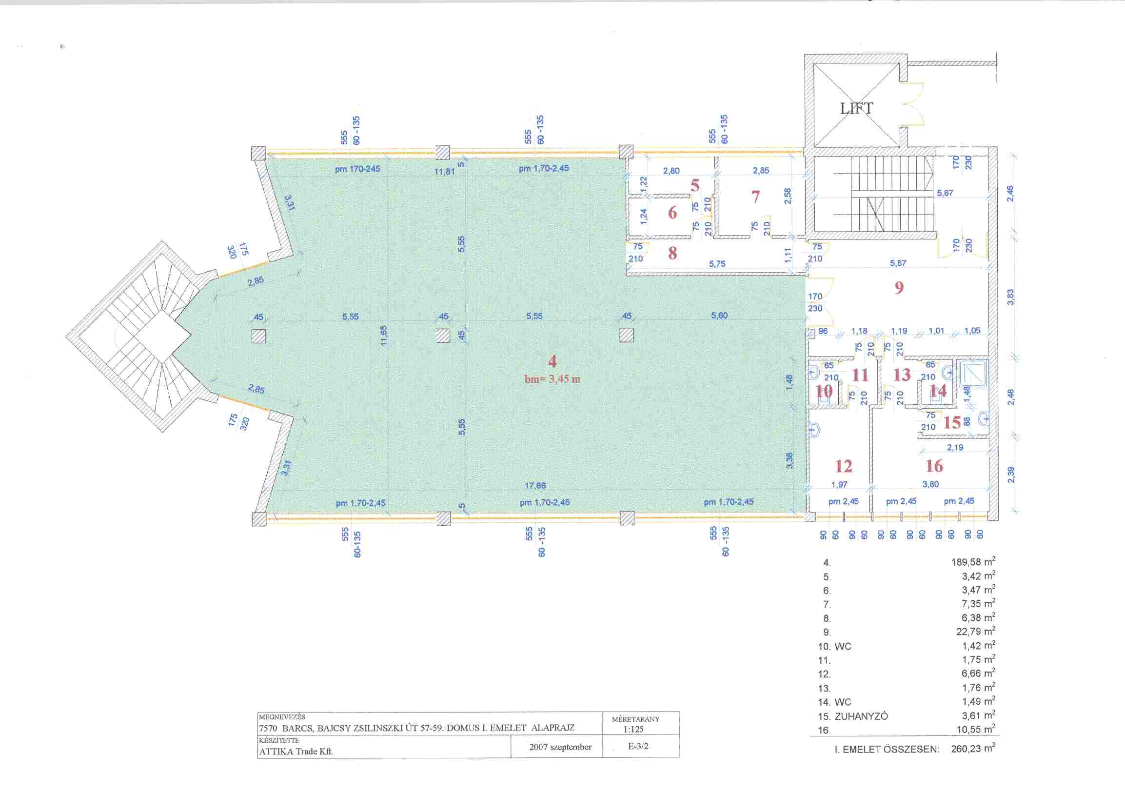
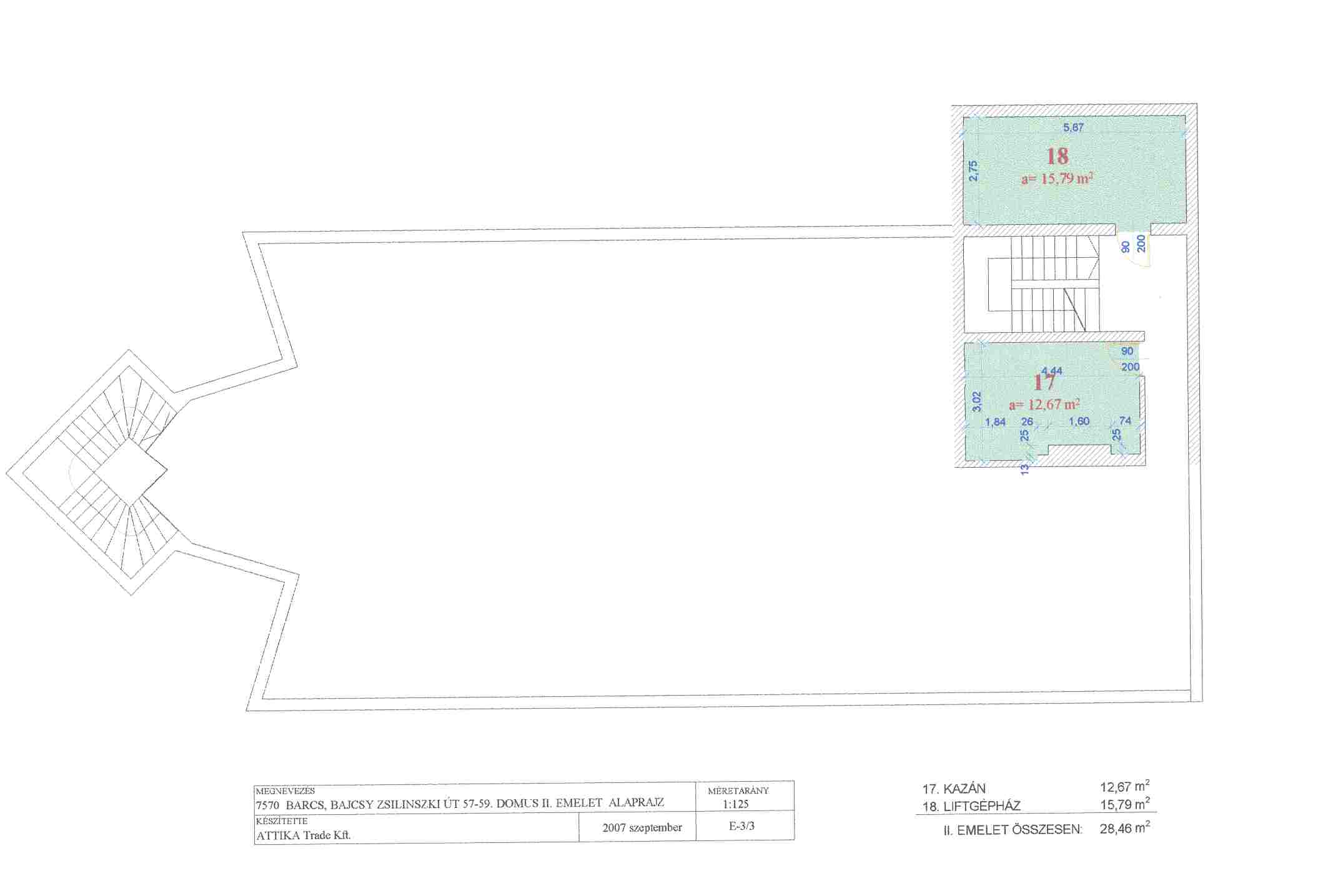
Barcs belvárosában a Bajcsy Zsilinszky úton található a kétszintes áruházunk, mely a főútvonalhoz közel helyezkedik el. A központi fekvésnek köszönhetően könnyen megközelíthető gépkocsival, tömegközlekedéssel és gyalogosan is. Az ingatlan alkalmas kereskedelmi és szolgáltató tevékenységre egyaránt. Jelenleg az emelet kiadó: I. emelet: 260,23 m2, II. emelet: 28,46 m2)
(Üzemben tartási költség: 28.845 HUF/hó+Áfa)

