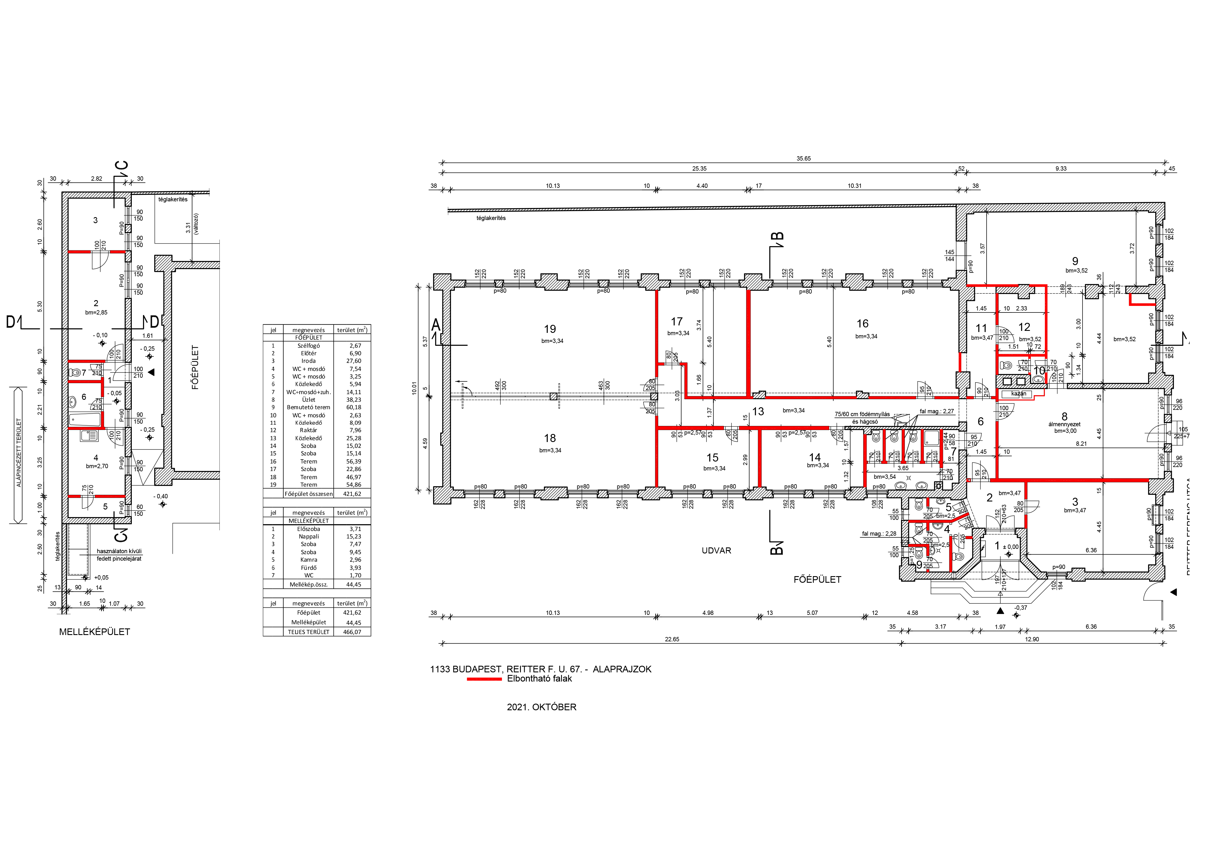
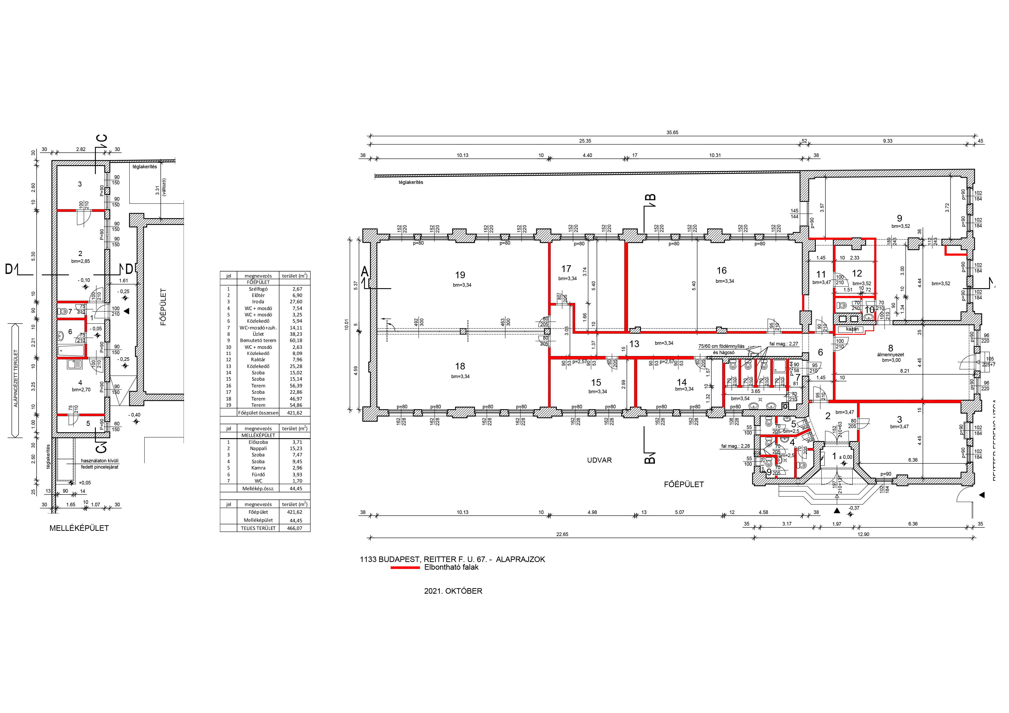
1134 Budapest, Reitter Ferenc utca 67. 466 m2 | 7€/M2/HÓ | 3263€/HÓ
Show
+ 4 kép
Alaprajzok
floormap_preview
+ 1 kép
Ingatlan Leírása
Bérelhető: megállapodás alapján. A XIII. kerület egyik frekventált részén, a nagy forgalmú Reitter Ferenc utcában található a 2 épületből és nagy saját kertből álló ingatlan. Irodának vagy oktatásra alkalmas épület, de akár munkásszállás céljára is megfelelő. A főépület nagyon jó állapotú (421,62 m2), a melléképület inkább raktározásra alkalmas (44,45 m2). A környéken végig új építésű lakóházak helyezkednek el. Az utcában raktárak is találhatók. Kb. 10 percre van autóval az M3-as kivezető szakasza, valamint a Nyugati tér is. Tömegközlekedéssel jól megközelíthető. (Üzemben tartási költség: 5.843 HUF+Áfa/hó)
További információért
töltse ki az alábbi űrlapot:
Név:
Telefon:
E-mail:

Elolvastam és elfogadom a Sigma-property Adatvédelmi szabályzatát!

Contact-send